濟南垂直螺旋提升機廠家專業定制不同尺寸要求的垂直螺旋上料機,該機占地面積小,故障率低,運行平穩,輸送效率高,主要應用于粉末或者小顆粒物料的輸送,可設計為固定式或者移動式,可實現自動上料、自動停止,可定制不同的輸送管徑和輸送高度,源頭廠家,價格美麗,竭誠歡迎朋友們來我司考察指導與合作。

一、垂直螺旋提升機的工作原理。
垂直螺旋提升機利用轉螺旋沿固定殼體移動輸送物料,頭部和尾部軸承從殼體中移出。吊裝軸承采用滑動軸承,配有防塵密封裝置。垂直螺旋提升機軸瓦一般采用粉末冶金,水泥輸送采用毛氈軸瓦,吊軸與螺旋軸滑塊連接。
二、螺旋輸送機設備的結構特點:
1.齒輪減速電機裝置依次與外殼管和螺旋總成連接,組合成一整套設備,便于移動和拆卸。
螺旋總成與軸端用花鍵連接,拆裝方便,承載力大,中性好。
3.密封性能好,外殼采用無縫鋼管,各端特殊連接,整機無粉塵泄漏,不浪費材料,創造良好的工作環境,符合環保要求。
4、體積小,轉速高,螺距變化大,保證快速均勻輸送。
5.進料口可根據工作現場生產所需的傾斜角度采用法蘭連接、布袋連接和萬向節法蘭連接,用戶可根據需要選擇。
三、垂直螺旋提升機的結構。
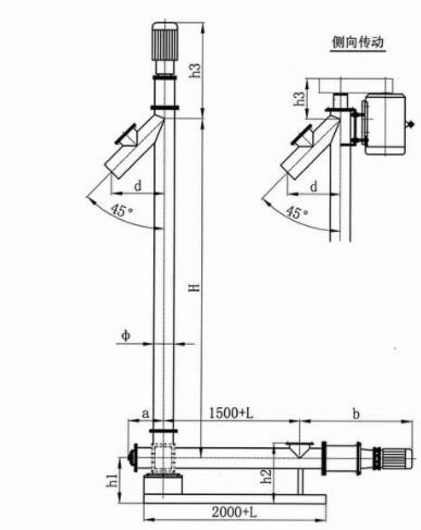
1、由驅動裝置、外殼、蓋板、螺旋軸、螺旋葉片、進料口、出料口等部件組成垂直螺旋提升機。
2、螺旋葉:可分為滿葉、帶葉、槳葉和齒形。
3、滿葉式:結構簡單,輸送能力強,適用于輸送散落性好的干顆粒狀或粉狀物料,是一種廣泛使用的垂直螺旋提升機葉片類型。
4、漿葉螺旋葉片:在完成輸送作業的同時,具有很強的混合和攪拌作用。例如,用于分離軋機混合器葉片和仁殼的圓篩。
5、外殼:分為U行外殼和圓殼兩種形式的垂直螺旋提升機,主要用于密封設備的進料,又稱密封絞龍。
6、螺旋軸:中空,由鋼管制成,強度高,重量輕,連接方便。在軸與軸的連接處和安裝軸承處使用一小段實心軸。將實心軸伸入連接處的空心軸,用高強度螺栓將穿空心軸與實心軸垂直固定連接。
四、垂直螺旋提升機規范產品操作。
操作保全人員必須經過培訓,熟悉機械結構和操作規范,嚴格按照規定操作。
每班開機前,必須檢查設備,設備保持良好狀態后,方可開垂直螺旋提升機。
3.啟動后空載運行3分鐘,確認電機旋轉方向正確,管壁與螺旋片無摩擦,各部分潤滑良好后方可負載運行。
如發現異?;蚬收希仨毩⒓赐C,排除故障或維修。
5.停機24小時以上,作業前打開檢查孔蓋,清理管道內殘留物料,及時檢查中間軸座。螺旋體是否異常,以確保垂直螺旋提升機處于良好的運行狀態。
濟南地處中國華東地區、山東中西部、華北平原東南部邊緣,地理位置介于北緯36°01′—37°32′、東經116°11′—117°44′之間。北連京津冀、南接長江三角洲地區,是中國人民解放軍北部戰區陸軍機關駐地 、環渤海經濟區和京滬經濟軸上的重要交匯點,華東地區重要的交通樞紐之一。
濟南因境內泉水眾多,擁有“七十二名泉”,素有“四面荷花三面柳,一城山色半城湖”的美譽,濟南八景聞名于世,是擁有“山、泉、湖、河、城”獨特風貌的旅游城市,是國家歷史文化名城、首批中國優秀旅游城市,史前文化——龍山文化的發祥地之一。
濟南成功舉辦過亞洲杯、全運會、中國國際園林花卉博覽會、中國藝術節等多項國際和國家級盛會;2016年12月被國務院列為第三批國家新型城鎮化綜合試點地區, 2020年9月2日,被評為國家公交都市建設示范城市。 [10] 2020年10月28日,濟南獲批建設國家物流樞紐。 2021年10月,被評為第三批社會信用體系建設示范區
截至2020年7月,濟南市共轄12個縣級行政區,包括10個市轄區、2個縣,分別是歷下區、市中區、槐蔭區、天橋區、歷城區、長清區、章丘區、濟陽區、萊蕪區、鋼城區、平陰縣、商河縣。 濟南市人民政府駐歷下區龍鼎大道1號
我司在濟南設立有辦事機構,用戶可就近咨詢我司的自動垂直螺旋提升機
理由:集研發、設計、生產、銷售各類自動螺旋上料機,全自動螺旋上料機,管式螺旋上料機,粉末螺旋上料機的生產型企業。振動式螺旋上料機廠自產品推出以來,以其簡約的設計、-完善的工藝、穩定的質量、良好的使用性能、合理的價格和完善的售后服務,振動式螺旋上料機廠在行業中得到好評,廣泛應用于煤炭,建筑,冶金,電力,化工,農業,食品、調味品等行業




客服1